Atypical Space in 20th arrondissement
France, ParisHighlights
Move in ready
Available with design, furniture and fixtureFrom 365 days
Flexible booking span in this space1,000 m2
Medium size for this areaBoutique
Typical store design for this areaAbout this space
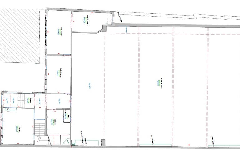
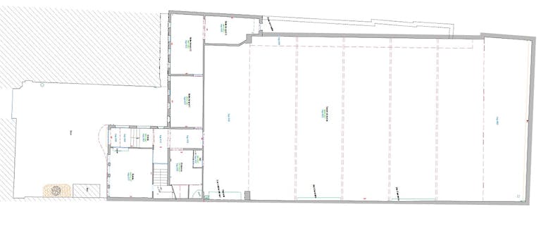
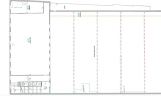
Atypical Space in 20th arrondissement Total Size: 1000 m2 RDC: 676 sqm (1 room of 565 sqm under 9.85m ceiling) R+1: 162 sqm R+2: 145 sqm
Amenities
About The Space
- Wc
Make the space yours
With our package add-ons, you can make your chosen space move-in ready. From furniture and branding, to staffing and marketing. We've got you covered.
Branded store design
Our experts will suggest furniture and design ideas that will elevate your customer experience.Rent furniture
Rent the very furniture showcased on your custom mood board directly from us - no hassle!Data & analytics
Measure your success with our data, and understand it with our simple analytics.Staffing
We'll get you the staff you need, all you need to do is clicking a few buttons.Point-of-sale
We will ensure that you are ready to accept all major credit cards for a flawless experience.Influencer marketing
Make sure people know about your brand with our brilliant, targeted, influencer marketing strategies.Location
Can't find the perfect place?

Emelie JohanssonStockholm Retail Expert










