Unique Mall for Events
Highlights
Move in ready
Available with design, furniture and fixtureFrom 1 days
Flexible booking span in this space2,000 m2
Medium size for this areaBoutique
Typical store design for this areaAbout this space
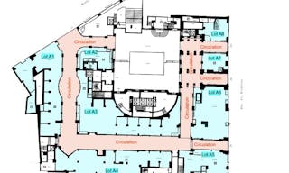
Location: Paris 2nd arrondissement Total Size: 2,000 sqm 2 stories (balcony with view) Fashion Show, Corporate Event
Amenities
About The Space
- Wc
Accessibility
- Multiple Entrances
Retail Support
- Window Display
Make the space yours
With our package add-ons, you can make your chosen space move-in ready. From furniture and branding, to staffing and marketing. We've got you covered.
Branded store design
Our experts will suggest furniture and design ideas that will elevate your customer experience.Rent furniture
Rent the very furniture showcased on your custom mood board directly from us - no hassle!Data & analytics
Measure your success with our data, and understand it with our simple analytics.Staffing
We'll get you the staff you need, all you need to do is clicking a few buttons.Point-of-sale
We will ensure that you are ready to accept all major credit cards for a flawless experience.Influencer marketing
Make sure people know about your brand with our brilliant, targeted, influencer marketing strategies.Location
Can't find the perfect place?

Emelie JohanssonStockholm Retail Expert














